Grundprogrammering af styring

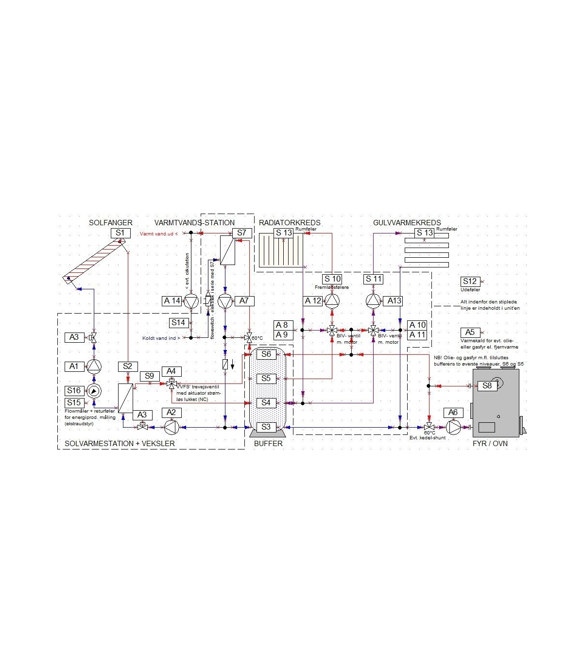
Dansk grundprogram til vores frit programmérbare styringer UVR1611 og UVR16X2, så de kan styre VVFS' midi-maxianlæg.

Læs mereShow less
1.000,00 DKK (inkl. moms)
Levering indenfor 1-3 dage
På lager 100 stk
Reference:
85000010
Fabrikat:
Beskrivelse
Opsætning af din nye styring, så den kan styre VVFS' midi-maxianlæg.
Indspilning af dansksproget software.

Programmet indeholder bla følgende styringsmoduler:

  • solvarmeproduktionsmåler
  • to varmekredse, radiator- og gulvvarme
  • brugsvandsproduktion i gennemstrømning (styring af varmtvandsstation)
  • brugsvands-cirkulation
  • styring af pumpe i fastbrændselsfyr, masseovn eller brændeovn med gris
Læs mereShow less
Produktoplysninger
85000010
Relaterede varer
Ingen varer

Menu

Menu